株式会社A-room

  • お気に入り
  • プライバシーポリシー
  • サイトマップ
株式会社A-room

営業時間 / 9:30~19:00

定休日 / 毎週水曜日・GW・夏季休暇・年末年始

プレサンス神戸長田マリエント 10階

  • 敷金0

お問い合わせ番号: 10088581

部屋紹介

インターネット無料♪

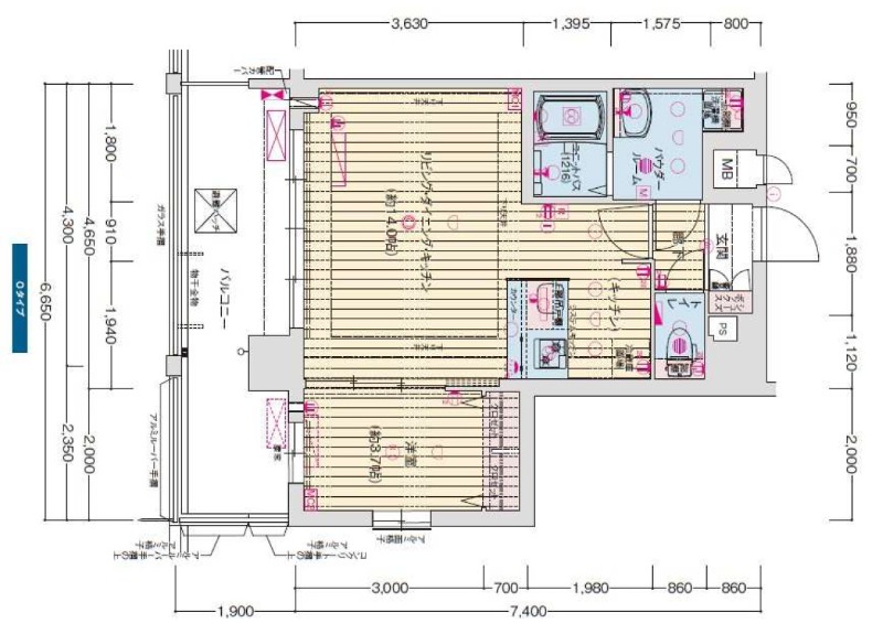
間取り 間取り詳細 面積 賃料 管理費/共益費 敷金(保証金) 礼金 採光向き
1LDK LDK 14畳
洋室 3.7畳
41.81㎡ 成約済 成約済 成約済 成約済 北東

物件写真

物件情報は代表的なお部屋を掲載しております。
建物内の別の間取りでも空室がある場合がございます。
ご指名物件の空室待ちなども受付けておりますので、お電話かメールにてスタッフまでお申付下さい。
※写真や図と現況が異なる場合は現況を優先させていただきます。

部屋紹介

間取り 1LDK
間取り詳細 LDK 14畳 、 洋室 3.7畳

物件概要・設備

物件種別 マンション
物件名 プレサンス神戸長田マリエント
物件所在地 兵庫県神戸市長田区細田町2丁目
交通機関
  • 山陽電鉄本線「西代駅」より徒歩9分
  • 神戸高速東西線「西代駅」より徒歩9分
  • 神戸高速東西線「高速長田駅」より徒歩10分
  • 神戸市営地下鉄西神・山手線「新長田駅」より徒歩11分
周辺施設
  • スーパー: 業務スーパー菅原店 距離106m
  • スーパー: サンディ長田菅原店 距離486m
  • スーパー: ライフ 長田店 距離610m
  • スーパー: 味彩館・Sugahara 距離660m
  • コンビニ: セブンイレブン 神戸細田町4丁目店 距離254m
  • コンビニ: ローソン 長田北町二丁目店 距離526m
  • コンビニ: ローソン 長田神楽町店 距離625m
特記事項 子供可、二人入居可、ファミリータイプ、高齢者相談、ペット不可、ルームシェア不可、保証会社利用可
賃料 成約済 管理費/共益費 成約済
敷金 成約済 礼金 成約済
フリーレント - 保険 1年 11000円
間取り 1LDK 面積 41.81㎡
採光向き 北東 契約形態 普通契約 1年
所在階 10階 入居可能日 2024/8/下
総戸数 106戸 竣工月 2024年8月
建築構造 RC 建物階建 地上10階 
駐車場 駐車料 12,000円
火災保険 鍵交換代 成約済
保証会社 要加入 /  プレサンスギャランティー
諸経費 成約済
設備 ガス(都市ガス)、インターホン(TVモニター付き)、防犯カメラ、オートロック、駐輪場、バイク置き場、日当り良好、眺望良好、通風良好、振分け、フローリング、全居室フローリング、ベランダ・バルコニー、クローゼット、クローゼット数(1)、下駄箱、バス・トイレ別(別室)、シャワー、追い焚き、浴室乾燥機、脱衣所、給湯、3点給湯、温水洗浄便座、洗面台、洗面所独立、シャンプードレッサー、洗濯機置き場(室内)、コンロ設置済、コンロ口数(3)、コンロ種類(都市ガス)、グリル、システムキッチン、カウンターキッチン、エアコン、エアコン台数(1)、BS、CS、光ファイバー、インターネット使用料無料
備考 ご来店不要のオンライン内見・現地での待ち合わせも可能です♪

近隣マップ

プレサンス神戸長田マリエントへのお問い合わせ

株式会社A-room

078-578-1022

お問い合せ番号: 10088581

所在地 〒652-0801 兵庫県神戸市兵庫区中道通1丁目2-8
営業時間 9:30~19:00 定休日 毎週水曜日・GW・夏季休暇・年末年始

新着お知らせ